Galpão para Aluguel , 1500 m² por R$ 40.000

Galpão para Aluguel , 1500 m² por R$ 40.000 GA0057_JM
Setor de Materiais de Construção (Ceilândia), Brasília - DF

6 Banheiros
1500m2
2700m2 Totais

Galpão logístico para Locação, Setor de Materiais de Construção (Ceilândia), Brasília, DF

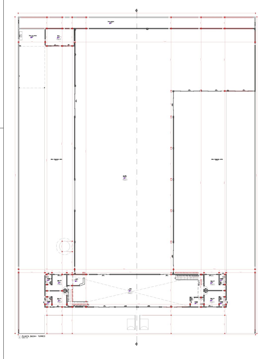
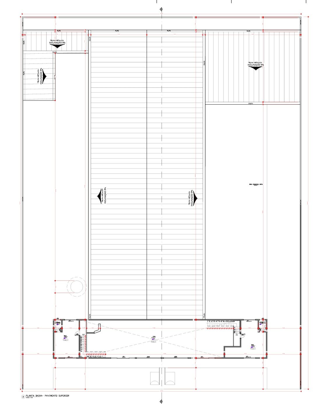
Galpão Logístico, Comercial e Industrial com 1500m² pé dir 8 mts em Terreno de 2.700m2 ao lado BR 070 no Setor de Materiais de Construção -Ceilândia- DF
GALPÃO REFORMADO COMO NOVO!
Galpão logístico com 1500m2 de área total em terreno de 2700m², sengo o galpão de 1.100m² de área privativa, 8 mts de pé direito, iluminação em LED e iluminação natural/zenital, proporcionando economia na conta luz, piso industrial polido com preparação para 5 ton/m², Telhas Termo Acústicas e material anti incêndio, porta automatizada, edificação anexo externo com 2 Banheiros PNE´S, copa/cozinha e área de descanso de funcionários, 2 portões de acesso ao imóvel.
Prédio administrativo com o conceito de loja de atendimento ao público externo/interno, com 4 salas de diretor/gerentes com banheiros, sendo 2 no pavimento superior e 2 no pavimento inferior.
Entrega pronta 30 dias.

A equipe Jeziel Mendes Consultoria Imobiliária, avalia gratuitamente, vende ou aluga o seu imóvel, com segurança jurídica, agilidade e sobretudo com profissionalismo ético.

Use os canais de contato:
corretorjeziel@creci.org.br



Fones linha direta:
Claro - WhatsApp.

Entre em contato


Ao enviar, você concorda com a Política de Privacidade.

Arbo Imóveis 2

(11) 40... ver telefone

Localização

Quadra SMC Quadra 5, 1 - Setor de Materiais de Construção (Ceilândia), Brasília - DF

IMPORTANTE: As informações exibidas nesta página fazem parte de um anúncio publicitário: GA5560989 - Galpão na Quadra SMC Quadra 5, 1, Setor de Materiais de Construção (Ceilândia) em Brasília. Dreamcasa não garante a precisão ou veracidade do anúncio ou de qualquer informação associada a ele. Dreamcasa não possui controle sobre o conteúdo, que é de responsabilidade de Arbo Imóveis 2. Todas as informações são fornecidas e mantidas por Arbo Imóveis 2 - J06932 - PR. Por favor, entre diretamente em contato com Arbo Imóveis 2 para obter informações mais detalhadas.

Antes de visitar um imóvel

1

Agendar a visita ao imóvel de preferência quando ainda possui luz solar, para que veja a iluminação natural e onde o sol é mais predominante.

2

Pedir uma cópia da planta do imóvel, pois assim pode planejar previamente como ficaria cada espaço depois da mudança.

3

Ter uma média de consumo dos últimos 3/6 meses do imóvel, como IPTU, água, condomínio etc. Assim saberá o que esperar no quesito despesas fixas do imóvel. Peça a imobiliária para providenciar.

4

Controle a pressão e a temperatura da água nos banheiros e na cozinha, para ter certeza que tudo funciona como deveria.

5

Ao notar pequenos reparos a serem feitos, como parede com mofo, vazamentos, piso quebrado: Faça um acordo prévio com os responsáveis pelo imóvel sobre quem irá arcar com os trabalhos e despesas.

6

Verificar a que distancia de casa fica a escola e de uma forma geral se tem hospitais nas redondezas, farmácias, supermercados. Assim, você pode garantir uma melhor qualidade de vida para si e seus familiares.

7

Se realmente gostar do imóvel parta para a parte de documentação, confira se está tudo regular e sem débitos antes de prosseguir.

8

A imobiliária/corretor de imóveis também deve ser regular, com CRECI e boa reputação no mercado.